Tavallista paremmin varusteltu paritalo

???? Mäntysaarenkatu 3, Ylivieska

Paritalo on rakenteilla ja arvioitu valmistumisaika on keväällä 2026. Ota yhteyttä nyt, niin pääset vielä vaikuttamaan paritalon materiaalivalintoihin.

Ota yhteyttä

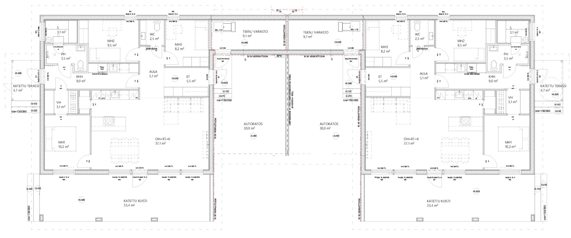
Toimiva pohjaratkaisu ilman seinänaapuria

Tarjolla on nyt erittäin laadukkaasti varusteltu paritalo Ylivieskan Salmiperällä, rauhallisella ja arvostetulla asuinalueella. Talo sijoittuu päättyvän tien päähän ja tontin takaraja rajautuu kaavoitettuun metsä-/puistoalueeseen, mikä luo suojaisan ja viihtyisän paikan.

Kodista löytyy kolme makuuhuonetta, joissa kaikissa on runsaasti säilytystilaa kiinteiden kaapistojen ansiosta. Päämakuuhuoneen yhteydessä on vaatehuone, josta suora kulku pesu- ja saunatiloihin – arjen luksusta parhaimmillaan.

Olohuone ja keittiö muodostavat yhtenäisen valoisan tilan, josta on suora kulku suurelle katetulle terassille. Terassi avautuu aurinkoiselle oleskelupihalle, ja siihen on helppo lisätä myös terassilasitus. Korkeatasoinen keittiö sisältää integroidut kodinkoneet, tasoliesituulettimen sekä kätevän ruokakomeron, johon mahtuvat niin pienkoneet kuin kuiva-aineetkin.

Kodinhoitohuoneesta on suora uloskäynti ja pesutiloista löytyy myös toinen wc. Saunassa on tyylikäs L-mallinen lauderatkaisu ja täyslasiseinä, pesuhuoneessa isot laatat ja laadukas Vieser-linjakaivo. Koti toteutetaan moderniin tyyliin listattomana katto-, ikkuna- ja ulko-ovien osalta. Ostajalla mahdollisuus vaikuttamaan pintamateriaali ja kaluste suunnitteluun.

Vaikka kyseessä on paritalo, sinulla ei ole seinänaapuria, koska asuntojen välissä on iso, 9 neliön varasto ja tekninen tila sekä oma autokatos.

Tontin pinta-ala on 1660 m², joka jaetaan hallinnanjakosopimuksella. Molemmat asunnot vastaavat omista kuluistaan — helppoa, selkeää ja omakotimaista asumista paritalossa.

Onko tässä sinun uusi, hyvin varusteltu ja moderni kotisi rauhallisella alueella?

Rakentaminen on jo käynnissä, varaa oma kotisi nyt. Paritalo on mahdollistoa toteuttaa myös  kiinteistömuotoisena tai urakkasopimuksella. Kysy lisää!
Myös asunnonvaihtokaupat ovat neuvoteltavissa — tarjoa rohkeasti omaasi!

Paritalossa korkeatasoinen ja listaton viimeistely

Laadukkaasti rakennetussa ja hyvin viimeistellyssä asunnossa paitsi viihtyy, myös jälleenmyyntiarvo säilyy. Upea asunto toteutetaan kaiken lisäksi listattomana, joka antaa todella hienon ja nykyaikaisesti viimeistellyn tunteen.

Kysy lisää listattomasta ratkaisusta.

Paritalossa on panostettu laajaan ja korkealuokkaiseen varusteluun

  • Sisustukseen sulautuvat huippuratkaisut, kuten Electrolux höyrynpoistojärjestelmä ja kalusteisiin integroidut kodinkoneet
  • Omega -keittiön tasokkaat kalusteet
  • Piha-alueet nurmikolla
  • Pihatiet murskeella
  • Käyttövalmis pintavarustus
  • Edullinen lämmitys
  • Asuntokohtainen ilma-vesilämpöpumppu
  • Iso terassi aurinkoiselle pihanpuolelle
  • Vinyylilankut kuivissa tiloissa
  • Listaton viimeistely
  • Maalatut levykatot

 

Varaa

Palvelut ja liikenneyhteydet

Kauppa 2 km

Päiväkoti 1,8 km

Koulu 1,8 km

Uimahalli 1,5 km

Jäähalli 1,5 km

Kuntoilupaikka 500 m

Paritalo on edullinen vaihtoehto omakotitalolle

Tästä hyvin varusteltu, täydellisesti viimeistelty laadukas uusi koti aivan tärkeimpien palveluiden vierestä?

Asunto Huoneistotiedot Pinta-ala Myyntihinta
As 1 3 MH, OH, K,WC, KHH, PH, S + tekn.tila, varasto 100 m² + 9 m² 269 900,00 Ota yhteyttä
As 2 3 MH, OH, K,WC, KHH, PH, S + tekn.tila, varasto 100 m² + 9 m² 269 900,00 Ota yhteyttä

Ota yhteyttä tai jätä yhteydenottopyyntö

Joona Savolainen

050 364 6639

joona.savolainen@vieskakoti.fi

Vieskakoti Kokkola

Vesa Savolainen

0400 587 767

vesa.savolainen@vieskakoti.fi

Vieskakoti Ylivieska